Der im brandenburgischen Guben nahe Berlin sitzende Hersteller Tiny Domo produziert mobile (mit untergebautem Trailer) und feststehende Tiny Houses mit Bodenplatte zu Wohn- und Gewerbezwecken (z. B. als mobiles Büro/Hotel etc.) oder als mobile Wellness-Oase. Dabei setzt Tiny Domo auf Individualität bei Gestaltung und Ausstattung nach Kundenwunsch mit Liebe zum Detail sowie auf die Verwendung von qualitativ hochwertigen, ökologischen und umweltfreundlichen Materialien, angefangen vom Ausbauhaus zum Selbstausbau bis hin zum einzugsfertigen Haus. Die Lieferung erfolgt europaweit.
WENN SIE SICH FÜR DIESEN HERSTELLER INTERESSIEREN …
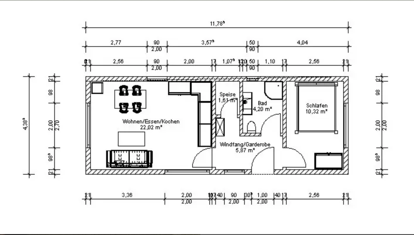
Zum Modell Living 118 GEG
TD Living 118 GEG – Ihr schlüsselfertiges, energieeffizientes Traumhaus im kompakten Format
Das TD Living 118 GEG von Tiny Domo vereint modernes Design, nachhaltige Bauweise und höchste Wohnqualität auf kleinem Raum. Dank hochwertiger Materialien – vom vollverzinkten Stahlrahmen über eine hervorragend gedämmte Klimawand (U-Wert 0,21 W/m²K) bis zum diffusionsoffenen Klimadach – genießen Sie ein gesundes Raumklima und erstklassige Energieeffizienz.
Ausgestattet mit einer Solaranlage inklusive Batteriespeicher, Wärmepumpenheizung, Fußbodenheizung und einer vollwertigen Einbauküche, ist das Haus sofort bezugsfertig. Hochwertige Fenster mit Wärmeschutzverglasung, ein modernes Bad mit Echtglasdusche sowie smarte Elektrik mit WLAN-fähiger Steuerung runden das Komfortpaket ab.
Das TD Living 118 ist baugenehmigungsfähig nach GEG, bietet flexible Gestaltungsoptionen für Innen und Außen – und dank des innovativen PickUp & Go Systems bleibt Ihr Zuhause sogar mobil.
Lieferzeit: ca. 3-4 Monate nach Auftragseingang – einzugsfertig, effizient und individuell anpassbar.
Hauslänge: ca. 11,78 m
Hausbreite: ca. 4,38 m
Haushöhe: ca 3,95 m (die lichte Raumhöhe im Erdgeschoss beträgt 2,30 m und entspricht damit einem Vollgeschoss)
Produktionsstandort:
Guben (BB)
Liefergebiet:
Ganz Europa
Produktionskapazität (pro Jahr):
50
Voraussichtliche Lieferzeit:
Ausbauhaus ca. 3 Monate ; Schlüsselfertig ca. 6 Monate
Besichtigungsmöglichkeiten / Probewohnen:
nach Terminvereinbarung
Produktpalette:
Unterteilt in die Grundrisse Business, Wellness und Living in verschiedenen Ausführungen und individuell planbar
Nutzungsmöglichkeiten:
Hauptwohnsitz, Ferienhaus, Wochenendhaus, Büro, gewerbliche Zwecke
Dachform(en):
Satteldach 25 Grad
Individuelle Planbarkeit:
4 Grundtypen, individuell veränderbar unter Berücksichtigung der statischen Voraussetzungen oder gegen Mehrpreis frei planbar
Ausbaustufen:
Schlüsselfertig / Ausbauhaus
Energiestandard:
GEG
Barrierefreiheit:
gegen Mehrpreis bzw. nach Absprache
Anteil ökologischer Baustoffe:
ca. 50 %
Optionen für Autarkiefähigkeit:
bis zu 100 %. Gegen Mehrpreis Photovoltaik, PVT, Batteriespeicher, Notstromaggregat oder komplettes Camping-Paket
Mobilität:
transportabel, stationär
Haustyp:
Tiny House in Wheels oder feststehend mit Bodenplatte
Nachweise:
vorhanden
Vertragstyp:
Kauf
Preis:
Einzugsfertig ab EUR 95.900 brutto
WENN SIE SICH FÜR DIESEN HERSTELLER INTERESSIEREN …
Tiny House Herstellervergleich
Damit Sie bei der Vielzahl an Tiny-House-Herstellern den Durchblick behalten und sich ganz bequem von zu Hause aus einen Überblick verschaffen können, haben wir zusammen mit den führenden Tiny-House-Experten den umfangreichsten Herstellervergleich Europas ins Leben gerufen. Wir wünschen viel Spaß und Erfolg damit:)
Firmenanschrift:
Tiny Domo, Kienberger Allee 4, D-12529 Schönefeld
Kontakt:
Tel: +49 (3561) 686 40 79; mail: info@tinydomo.com
Website:
Eigenschaften der Immobilie
- Tiny House (on Wheels)
- Grundstücksfläche: 51 m²
- Wohnfläche: 44 m²
- Haustyp: Tiny House (on Wheels)
- Vertragstyp: Kauf
- Mobilität: Transportabel, Stationär
- Dachform: Satteldach
- Ausbaustufe: schlüsselfertig
- Energiestandard: GEG/EnEV 2016
